Plot with a unique location!!!

Estepona Old Town, Estepona

1.260.000 €

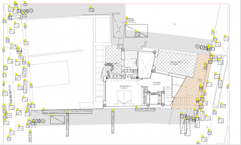
An exceptional plot of land is offered for sale, notable for its generous dimensions, which allow for the construction of a single-family home as envisaged in the project, as well as multiple development alternatives. Options range from two ground floors plus two duplexes to six apartments or even an exclusive boutique hotel.
The privileged location of this plot makes it a real gem in the heart of the historic centre of Estepona.
It has two façades: one located at N`25 San Antonio Street and the other at N`28-30 Los Reyes Street.

All details

  • Reference BhI-019
  • Property Type Plot
  • Plot 228 m²
  • EPC In Progress
Contact